Схема Сhevrolet Сruze
Схемы электрооборудования автомобилей Сhevrolet Сruze 1.6 и 1.8 L, в основном, одинаковые за исключением системы управления двигателем и нескольких других особенностей.
Электросхема системы зарядки аккумуляторной батареи приведена на рисунке ниже. Она построена по классической схеме. Блок регулятора напряжения встроен в конструкцию генератора.

Управление двигателем
Содержание
Схема электрическая системы управления двигателем Шевроле Круз основной узел системы – блок управления двигателем. Он собирает информацию различных датчиков:
- датчики коленвала и распредвала;
- датчики температуры;
- датчик массового расхода воздуха;
- датчик положения дроссельной заслонки;
- лямбда-зонд.
На основании показаний датчиков блок управления двигателем формирует управляющие сигналы на:
- форсунки;
- систему зажигания;
- топливный насос и другие устройства.
Система управления двигателем Шевроле Круз хорошо диагностируется с помощью специальных сканеров. В случае появление ошибки по данной системе «CHECK ENGINE» производится компьютерная диагностика, затем проверяется электропроводка (согласно схеме) к неисправному устройству в соответствии с показаниями диагностики. Только после этого неисправный элемент подлежит замене.
Система центрального замка Шевроле Круз служит для управления работой приводов замков дверей. Работой подогревателя сидений управляет отдельное реле. Наиболее частая неисправность в системе центрального замка – отказ приводов или неисправность электропроводки к соответствующей двери.
Состояние систем автомобиля и электрообрудования контролирует приборная панель. Схемы подключения индикаторных устройств и ламп на приборной панели приведены на рисунках приведенных ниже. В случае отказа одной из индикаторных ламп требуется демонтаж приборной панели. Замена соответствующего индикаторного прибора трудностей не вызывает.

Схема проводки
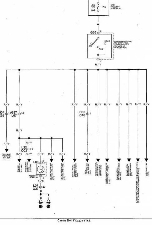
Схема проводки подсветки приборов и элементов кузова и салона приведена на рисунке:
Указателями поворотов и аварийной сигнализацией управляет отдельный блок. Его режимы определяет переключатель, установленный на рулевой колонке. Отопителем салона управляет многопозиционный переключатель. Он подает напряжение на соответствующий сегмент реостат, через который подается ток на электродвигатель системы отопления (вентилятор печки). Реостат и электровентилятор печки в процессе эксплуатации автомобиля Шевроле Круз требуют периодического обслуживания.
Схема электропроводки автоматизированной системы охлаждения салона (кондиционера) изображена на рисунке ниже. Блок управления кондиционером собирает данные с датчиков температуры и давления в системе и управляет работой электромуфты, которая включает работу компрессора кондиционера. Блок управления также дает команды на включение вентиляторов охлаждения радиатора. Следует отметить, что блок управления кондиционером в автомобилях Шевроле Круз является проблемным узлом.
Схема управления автоматической коробкой переключения передач приведена на рисунке ниже. Блок управления режимами АКПП, руководствуясь положением переключателя режимов работы АКПП и сигналами датчиков, подает сигналы на управляющие соленоиды (электроклапаны), которые управляют работой планетарной передачей и гидротрансформатором. Блок управления автоматической коробкой переключения передач является наиболее сложным с точки зрения ремонтнопригодности.
Схема перераспределения крутящего момента ходовой приведена на рисунке ниже. Она связана с блоком управления двигателем по CAN-шине.
Ниже приведена распиновка основных разъемов, входящих в электропроводку автомобиля Шевроле Круз. Знание распиновки (соответствия номеров контактов положению на разъеме) необходимо при проведении ремонтных и диагностических работ.








